新婚・カップル向け賃貸物件検索サイト。新潟、富山、石川、福井、山梨、長野の賃貸マンション・アパート・不動産会社情報が満載です!

額新保1丁目貸家

10万円
管理費・共益費  -
20万円
-
保証金   -
敷引・償却   -
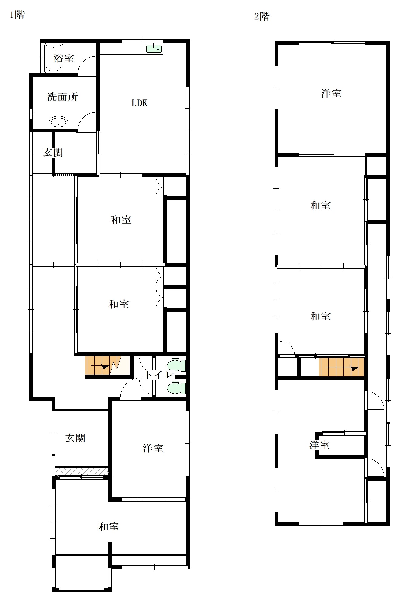
8LDK
214.3m2
-
一戸建て
築55年
石川県金沢市額新保1
北陸鉄道石川線/額住宅前駅 歩6分 [乗り換え案内]
北陸鉄道石川線/馬替駅 歩8分 [乗り換え案内]
北陸鉄道石川線/乙丸駅 歩15分 [乗り換え案内]
アパマンショップ金沢杜の里店(株)オーキッド
TEL: 076-260-1860

お電話の際は、SUUMOを見たとお伝えいただくとスムーズです。

  • 部屋情報
  • 地図・周辺環境
  • エリアの口コミ
★オンライン内見、物件現地待合せ歓迎です!ご相談ください★
★金沢駅からバスで1本、駐車場完備のアパマンショップ金沢杜の里店です★石川県内すべて幅広くお部屋のご紹介・ご契約手続きが可能です!お部屋探し含め、ご不明な点やご要望等、お気軽にお問い合わせください☆
アパマンショップ金沢杜の里店(株)オーキッド
TEL: 076-260-1860
※映像に誤りがある場合は こちら
  • 1/14
  • 2/14
  • 3/14
  • 4/14
  • 5/14
  • 6/14
  • 7/14
  • 8/14
  • 9/14
  • 10/14
  • 11/14
  • 12/14
  • 13/14
  • 14/14
建物外観
※写真に誤りがある場合は こちら
アパマンショップ金沢杜の里店(株)オーキッド
TEL: 076-260-1860

部屋の特徴・設備

  • バストイレ別、エアコン、クロゼット、室内洗濯置、シューズボックス、システムキッチン、南向き、追焚機能浴室、温水洗浄便座、脱衣所、洗面所独立、洗面化粧台、2口コンロ、押入、礼金不要、閑静な住宅地、2面採光、保証人不要、駐車2台可、ガスレンジ付、3面採光、駅まで平坦、キッチンに窓、敷金2ヶ月、保証金不要、浴室に窓、事務所相談、トイレ2ヶ所、平坦地、ルームシェア相談、一部フローリング、駐車3台可、未入居、前面棟無、バス2路線、駅徒歩5分以内、駅徒歩10分以内、店舗付住宅、専有面積30坪以上、専有面積25坪以上、駐車並列2台、駐車並列3台、平面駐車場、LDK12畳以上、リビングの隣和室、和室、続き和室、和室8畳以上、プロパンガス、タンクレストイレ、洗面所に窓、洗面所にドア、年内入居可、年度内入居可、保証会社利用可、シェアハウス、通風良好

物件概要

情報の見方

間取り詳細 和10 和8 和8 和8 LDK12 構造 木造
階建 2階建 築年月 1971年10月
エネルギー
消費性能
- 断熱性能 -
目安光熱費
  • -
損保 2万円2年 駐車場 敷地内4950円/駐3台可
入居 相談 取引態様 仲介
条件 単身者可/二人入居可/子供可/事務所利用相談/ルームシェア相談 取り扱い店舗
物件コード
-
SUUMO
物件コード
100471944443 総戸数 -
情報更新日 2025/12/07 次回更新予定日 2025/12/15□
契約期間
  • 普通借家 2年
保証会社
  • 日本セーフティー利用必 初回保証料:賃料総額の50%、月額保証料:900円、送金手数料:400円(税別)
備考
  • 巡回管理/リフォーム:2020年頃トイレ、洗面所、キッチン

情報掲載元物件はこちら
アパマンショップ金沢杜の里店(株)オーキッド
TEL: 076-260-1860

店舗・物件ブランドのアピールポイント

この物件を取り扱う店舗

アパマンショップ金沢杜の里店(株)オーキッド 取引態様:仲介
免許番号: 国土交通大臣(1)第10786号
  • 女性スタッフ
  • 法人契約取扱
  • 駐車場あり
  • 駅まで車送迎
  • 外国語対応可
社会人のあなたも、学生のあなたにも…みなさまのライフスタイルにあったお部屋をご紹介致します☆
石川県金沢市もりの里1-186 マーゴ98ビル1階
9:30~17:30
定休日: 毎週水曜日、第3日曜日
-
076-260-1860
  • 部屋情報
  • 地図・周辺環境
  • エリアの口コミ

【掲載物件情報について】

・SUUMOは「自ら居住するための住宅」をお探しの方に向けたポータルサイトです。契約者以外の方が使用する(例:第三者に宿泊させる等)ことを目的としたお問合せはご遠慮ください


・SUUMOではユーザーの皆様に最も信頼されるサイトを目指して、物件情報の精度向上に努めております。SUUMOに掲載されている物件情報について「事実と異なる点や誤解を招く表現がある」「成約済の物件が掲載されている」などにお気づきになりましたら、以下のページからご連絡ください

その他の情報

最寄駅から探す

最寄駅の沿線から探す

↑ページの先頭へ戻る

お気に入りに追加しました。