新婚・カップル向け賃貸物件検索サイト。茨城、栃木、群馬、埼玉、千葉、東京、神奈川の賃貸マンション・アパート・不動産会社情報が満載です!

パークノヴァ横浜阪東橋

6万円
管理費・共益費  5000円
-
-
保証金   -
敷引・償却   -
ワンルーム
16.75m2
マンション
築37年
神奈川県横浜市南区浦舟町1
ブルーライン/阪東橋駅 歩9分 [乗り換え案内]
京急本線/黄金町駅 歩13分 [乗り換え案内]
ブルーライン/伊勢佐木長者町駅 歩15分 [乗り換え案内]
(株)タイセイ・ハウジー横浜営業所
TEL: 045-312-6161

お電話の際は、SUUMOを見たとお伝えいただくとスムーズです。

  • 部屋情報
  • 地図・周辺環境
  • エリアの口コミ
「パークノヴァ横浜阪東橋」のここがイチオシ。オートロック機能
こだわりポイント満載のパークノヴァ横浜阪東橋。オートロック機能が付いているのでドアの前まで知らない人が入って来る危険が減り、安心して暮らせます。室内設備はエアコン・CATVなど豊富に揃っており、過ごし
  • 1/2
  • 2/2
建物外観
※写真に誤りがある場合は こちら
(株)タイセイ・ハウジー横浜営業所
TEL: 045-312-6161

部屋の特徴・設備

  • バルコニー、エアコン、クロゼット、オートロック、室内洗濯置、エレベーター、CATV、礼金不要、敷金不要、IHクッキングヒーター、保証人不要、2沿線利用可、事務所相談、2駅利用可、3駅以上利用可、駅徒歩10分以内、都市ガス、年内入居可、年度内入居可、敷金・礼金不要

物件概要

情報の見方

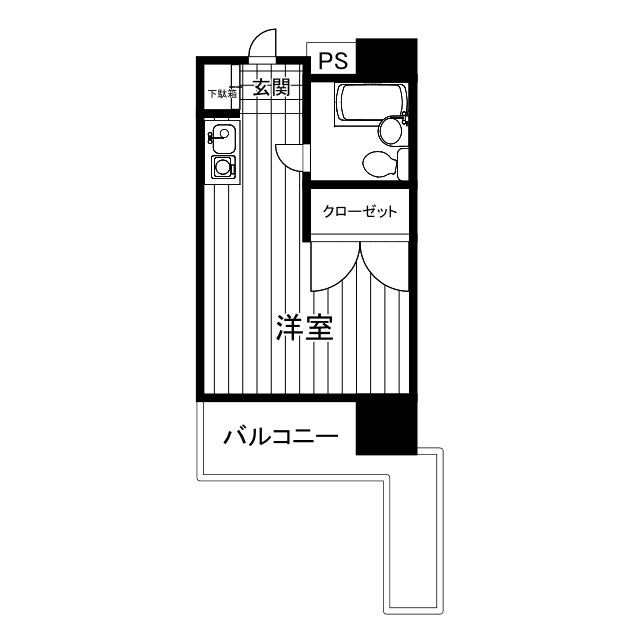
間取り詳細 洋6 構造 鉄骨鉄筋
階建 8階/11階建 築年月 1989年12月
エネルギー
消費性能
- 断熱性能 -
目安光熱費
  • -
損保 2万円2年 駐車場 -
入居 相談 取引態様 仲介
条件 二人入居可/子供可/事務所利用不可 取り扱い店舗
物件コード
963662
SUUMO
物件コード
100473309620 総戸数 -
情報更新日 2025/12/07 次回更新予定日 2025/12/15
契約期間
  • 普通借家 2年
保証会社
  • 日本セーフティー利用必 初回保証委託料:総賃料の100% 毎月手数料:総賃料の700円
ほか初期費用
  • 合計3.85万円(内訳:入居安心サービス料1.65万円 鍵交換代2.2万円)

情報掲載元物件はこちら
(株)タイセイ・ハウジー横浜営業所
TEL: 045-312-6161

店舗・物件ブランドのアピールポイント

この物件を取り扱う店舗

(株)タイセイ・ハウジー横浜営業所 取引態様:仲介
免許番号: 国土交通大臣(10)第3440号 / (公社)神奈川県宅地建物取引業協会会員 / (公社)首都圏不動産公正取引協議会加盟
  • 女性スタッフ
  • 多店舗展開
  • 保証人不要相談可
  • 引越会社紹介
  • 法人契約取扱
ご提供したいのは「安心と信頼」
横浜近郊のお部屋探しはお任せ下さい
神奈川県横浜市西区北幸1-7-6 日土地横浜西口第一ビル5階
10:00~18:00
定休日: 1~3月は無休
JR京浜東北線/横浜駅 歩5分
JR横須賀線/横浜駅 歩3分
ブルーライン/横浜駅 歩1分
045-312-6161
  • 部屋情報
  • 地図・周辺環境
  • エリアの口コミ

【掲載物件情報について】

・SUUMOは「自ら居住するための住宅」をお探しの方に向けたポータルサイトです。契約者以外の方が使用する(例:第三者に宿泊させる等)ことを目的としたお問合せはご遠慮ください


・SUUMOではユーザーの皆様に最も信頼されるサイトを目指して、物件情報の精度向上に努めております。SUUMOに掲載されている物件情報について「事実と異なる点や誤解を招く表現がある」「成約済の物件が掲載されている」などにお気づきになりましたら、以下のページからご連絡ください

その他の情報

最寄駅から探す

最寄駅の沿線から探す

↑ページの先頭へ戻る

お気に入りに追加しました。