新婚・カップル向け賃貸物件検索サイト。茨城、栃木、群馬、埼玉、千葉、東京、神奈川の賃貸マンション・アパート・不動産会社情報が満載です!

LUMEED梅島 304号室

13.4万円
管理費・共益費  10000円
13.4万円
13.4万円
保証金   -
敷引・償却   -
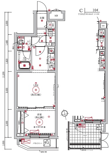
1LDK
37.38m2
マンション
新築
東京都足立区梅田8
東武伊勢崎線/梅島駅 歩5分 [乗り換え案内]
(株)タイセイ・ハウジー錦糸町営業所
TEL: 03-5669-6161

お電話の際は、SUUMOを見たとお伝えいただくとスムーズです。

  • 部屋情報
  • 地図・周辺環境
  • エリアの口コミ
  • 1/2
  • 2/2
建物外観
※写真に誤りがある場合は こちら
(株)タイセイ・ハウジー錦糸町営業所
TEL: 03-5669-6161

部屋の特徴・設備

  • バストイレ別、エアコン、ガスコンロ対応、クロゼット、フローリング、TVインターホン、浴室乾燥機、オートロック、室内洗濯置、システムキッチン、追焚機能浴室、温水洗浄便座、エレベーター、2口コンロ、宅配ボックス、CATV、BS・CS、防犯カメラ、ペット相談、保証人不要、敷金1ヶ月、ガスレンジ付、ディンプルキー、CS、築2年以内、駅徒歩5分以内、駅徒歩10分以内、敷地内ごみ置き場、都市ガス、BS、年度内入居可、礼金1ヶ月

物件概要

情報の見方

間取り詳細 洋4.8 LDK10.4 構造 鉄筋コン
階建 3階/5階建 築年月 2025年12月
エネルギー
消費性能
- 断熱性能 -
目安光熱費
  • -
損保 1.5万円2年 駐車場 -
入居 '25年12月下旬 取引態様 仲介
条件 二人入居可/ペット相談/事務所利用不可 取り扱い店舗
物件コード
-
SUUMO
物件コード
100474892590 総戸数 -
情報更新日 2025/12/09 次回更新予定日 2025/12/17■
契約期間
  • 普通借家 2年
保証会社
  • 保証会社利用必 JACCS 初回保証料/総賃料の50% 年間保証料/10 000円 口座振替手数料/350円
ほか初期費用
  • 合計1.1万円(内訳:事務管理手数料1.1万円)
ほか諸費用
  • 更新料 新賃料1.00ヶ月分
備考
  • 巡回管理

情報掲載元物件はこちら
(株)タイセイ・ハウジー錦糸町営業所
TEL: 03-5669-6161

この物件を取り扱う店舗

(株)タイセイ・ハウジー錦糸町営業所 取引態様:仲介
免許番号: 国土交通大臣(10)第3440号 / (公社)東京都宅地建物取引業協会会員 / (公社)首都圏不動産公正取引協議会加盟
  • 駅徒歩3分以内
  • 社宅・寮対応
  • 多店舗展開
  • 引越会社紹介
  • 賃貸保証対応
東京都墨田区江東橋3-13-1 KS15ビル9階
10:00~18:00
定休日: 水曜日
JR総武線/錦糸町駅 歩1分

03-5669-6161
  • 部屋情報
  • 地図・周辺環境
  • エリアの口コミ

【掲載物件情報について】

・SUUMOは「自ら居住するための住宅」をお探しの方に向けたポータルサイトです。契約者以外の方が使用する(例:第三者に宿泊させる等)ことを目的としたお問合せはご遠慮ください


・SUUMOではユーザーの皆様に最も信頼されるサイトを目指して、物件情報の精度向上に努めております。SUUMOに掲載されている物件情報について「事実と異なる点や誤解を招く表現がある」「成約済の物件が掲載されている」などにお気づきになりましたら、以下のページからご連絡ください

その他の情報

最寄駅から探す

最寄駅の沿線から探す

↑ページの先頭へ戻る

お気に入りに追加しました。